Welcome to Iseman Homes
Main Site
Iseman Logo
Slide background
Click for Slideshow

 

Grand Rapids - Walnut Creek (multi-section)
Details
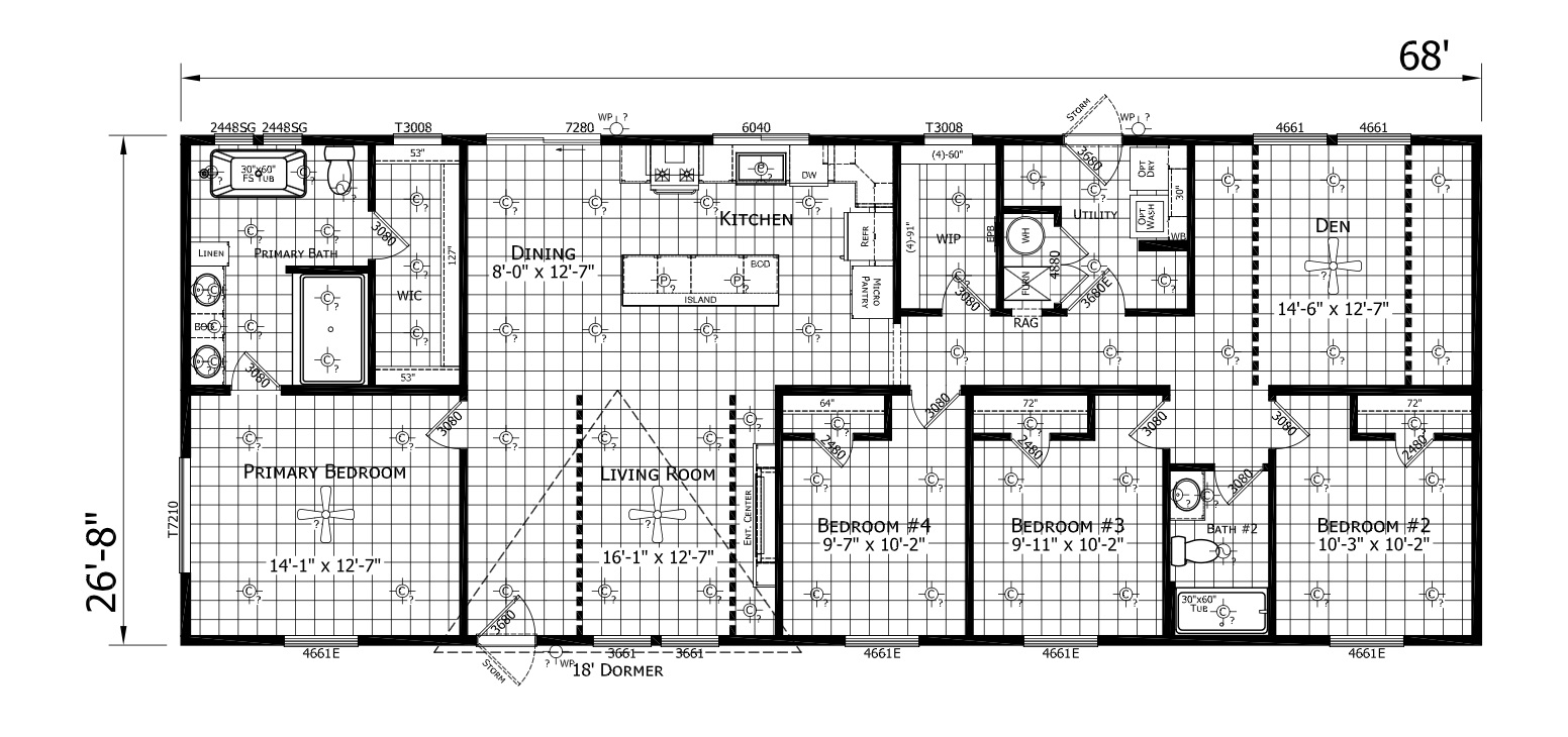
Make: Highland   Model: Walnut Creek
Bedrooms: 4   Size: 26 X 68
Bathrooms: 2   Year: 2025
      Sqr ft: 1768

The Walnut Creek is now orderable in Cohasset, MN! This 4 bedroom, 2 bathroom home offers incredible curb appeal and a bright, energy-efficient layout. The open floor plan provides a seamless flow between living, kitchen, and dining spaces, all filled with natural light. The standout primary suite features dual sinks, a walk-in shower, a standalone tub, and a massive walk-in closet—perfect for modern living. Call 218-398-5067 for more information!

* Ask our sales team about financing options.

Request more information about this model

* Please provide your first name.
* Please provide your last name.
* A value is required. Invalid format.
* Please provide your phone number.
* Please provide your expected down payment.
* Please select when you plan to buy.
* Please provide where your home will be located

No referrer


Iseman Homes has many locations to serve you.

Iseman Homes is one of the nation’s leaders in manufactured home sales with offices in seven states. Founded in 1920, Iseman was an industry pioneer in bringing the benefits of manufactured homes to market. For more information please navigate to your nearest Iseman Sales Center, or email us now!

Whether you are just starting, or looking for a change, joining the Iseman family might be for you. Job opportunities exist for both sales or service.
Click here to send information and resume.